Loading

2025 Lyceé Français de Madrid Library

Download development project

Texts

1st prize in international competition

The new Library is the most striking element of our extension project for the French Lycée in Madrid, the result of an international competition that we won in 2018.

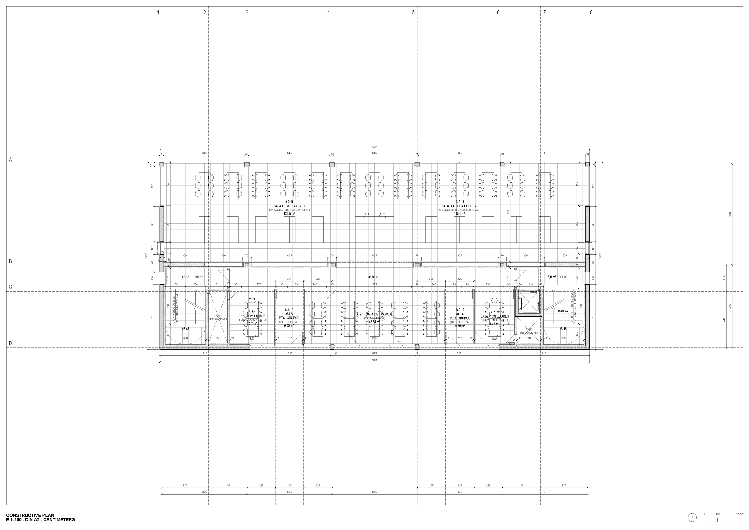
This is a box measuring 34 x 15 x 12 metres, with exposed concrete on the outside, whiter than white on the inside and full of light. The north façade is entirely glazed from top to bottom, with the glass doubling up on both corners. In one of the corners, the roof is also entirely made of glass, forming a trihedron of light.

The double-height reading room space is overlooked by the other spaces that open onto it. This is a true boîte à lumière.

We believe that our box-library, with its bare concrete exterior and luminous white interior, will be not only very useful but also very beautiful.

Technical data

Architect: Alberto Campo Baeza with Laps Architecture . Location: Madrid. Client: Agence pour l'enseignement français à l'etranger AEFE. Competition: 2018. Project: 2022. Built: 2025. Area: 1,700sqm. Collaborators: Alejandro Cervilla García, Ignacio Aguirre López, Alfonso Guajardo-Fajardo Cruz, Tommaso Campioti, María Pérez de Camino, Elena Jiménez Sánchez , Joan Suñé Almenar, Sara Fernández de Trucios, Juanjo Sánchez Rivas, Elena Pérez Espigares, Rodrigo González Rivero. Structure: Andrés Rubio Morán. Engineering: R. Úrculo Ingenieros Consultores, Ditec Ingenieros (Acoustic ingeneering). Quantity surveyor: Francisco Melchor Gallego, Juan Carlos Cano. Contractor: Clásica Urbana. Photographer: Javier Callejas. Renders: Supernova Studio, LAPS, EACB.

Plans

Models

Images

Utilizamos cookies para asegurar que damos la mejor experiencia al usuario en nuestro sitio web. Más Información ⎮ Configurar Cookies.   
Privacidad