Loading

2007 Casa Olnick Spanu, NY

Rizando el rizo

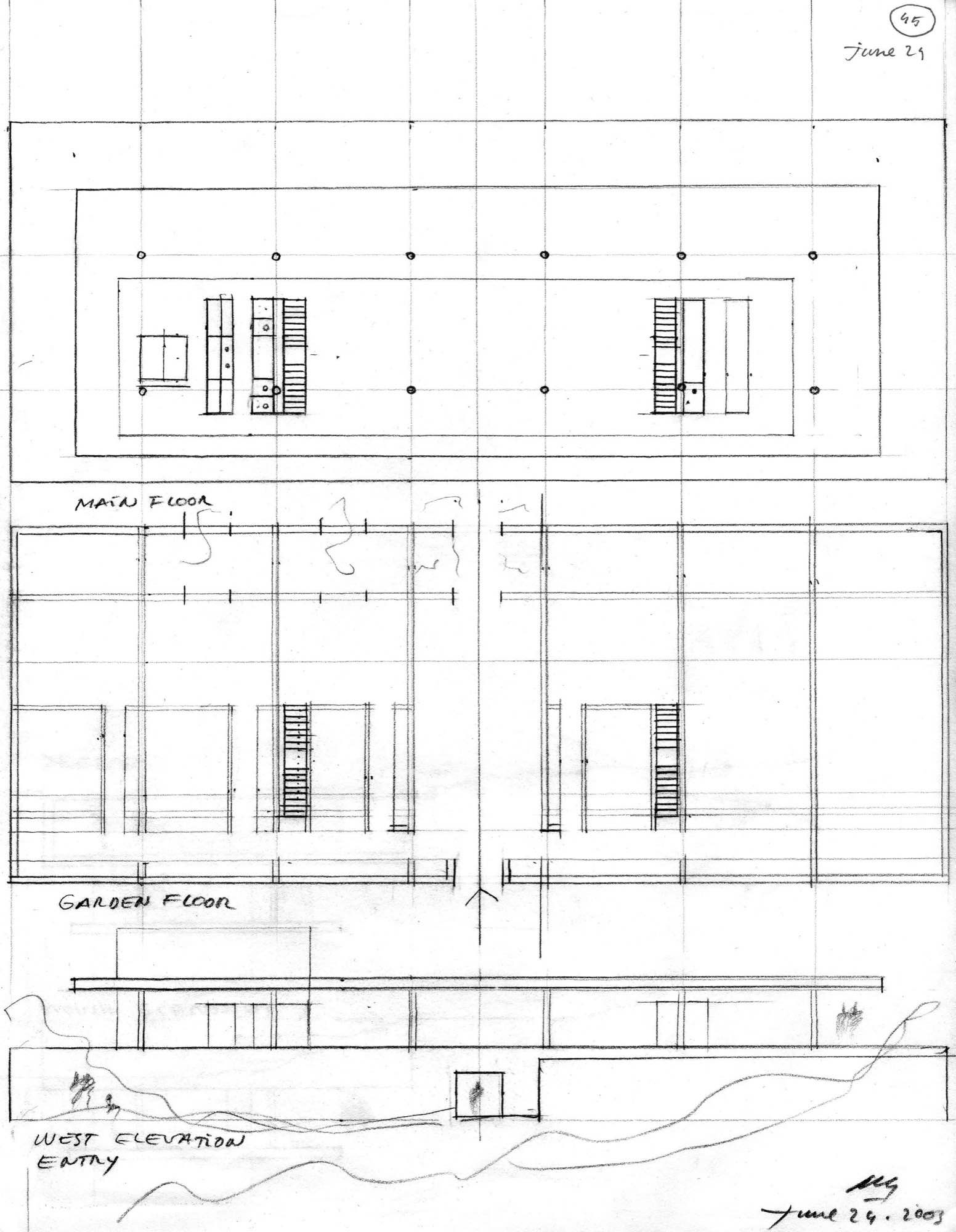
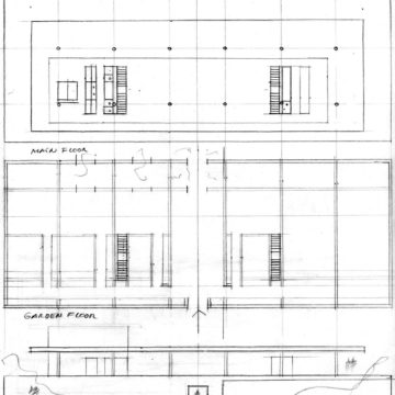
En un lugar de profunda calma donde tras un día de lluvia y niebla, una intensa luz se refleja en la quietud del espejo de las profundas aguas del majestuoso río Hudson. En este impresionante lugar, decidimos establecer un plano, una plataforma, que subrayando el paisaje que aparece frente a nosotros, intentara realzar el paisaje. Construimos una gran caja de 122 pies de largo por 54 pies de ancho por 12 pies de alto. Con recias paredes de hormigón que acentúan su relación con la tierra. La cubierta de esta caja es plana y de piedra, travertino, para establecernos sobre ella.


Go to project in Architecture
Utilizamos cookies para asegurar que damos la mejor experiencia al usuario en nuestro sitio web. Más Información ⎮ Configurar Cookies.   
Privacidad