Loading

1996 COLEGIO PÚBLICO CHATILLON

Texts

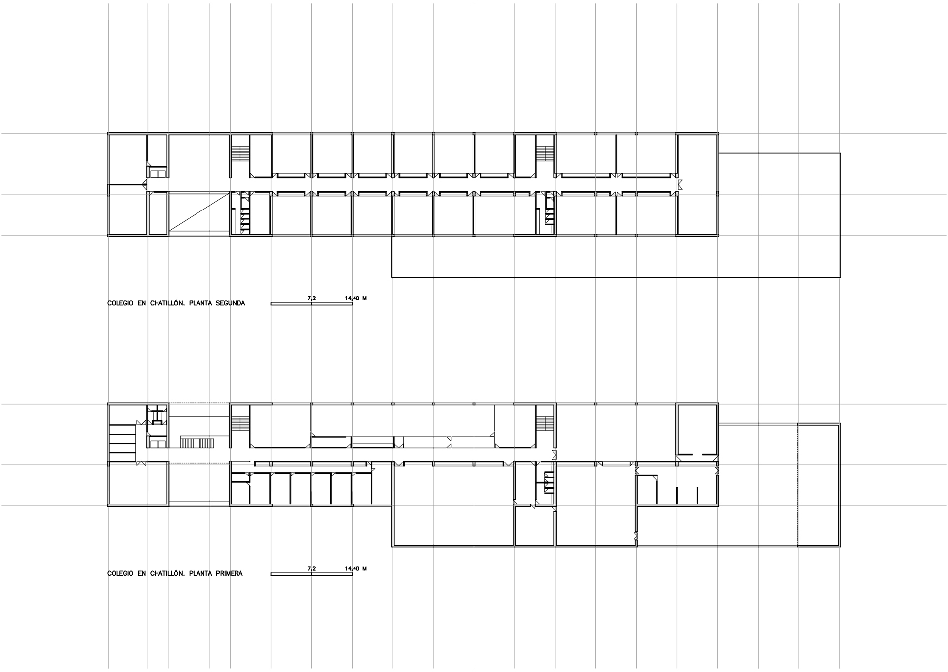
Para este edificio escolar para 700 alumnos se adopta el esquema en espina de pez, con pasillo central y aulas a ambos lados. En los extremos se sitúan los espacios comunes.

En la cabeza, el punto de entrada se crea un gran espacio vertical común que cose todo el edificio y que contiene los elementos principales de comunicación. Se trata este gran espacio singular conectando dos espacios de doble altura desplazados para conseguir un espacio diagonal que potenciamos con la luz tomada de lo alto que lo atraviesa.

Las dos plantas altas contienen todas las aulas y en planta baja se ubican espacios comunes y despachos de profesores.

Los criterios de máxima economía con la máxima compacidad se hacen compatibles con el cumplimiento del programa pedido dentro de la máxima flexibilidad conseguida con un orden estricto de la estructura. También en los materiales y acabados se propone la mayor sobriedad.

El esquema lineal da lugar a un edificio muy alargado y con proporciones similares a las de un barco, un “bateau îvre” como diría el poeta.

Technical data

Arquitecto: Alberto Campo Baeza in collaboration with Bruno Mercier. Situación: Besançon, Chatillon, Francia. Concurso: 1996. Superficie: 7.000m2.

Bocetos

Planos

Maquetas

Utilizamos cookies para asegurar que damos la mejor experiencia al usuario en nuestro sitio web. Más Información ⎮ Configurar Cookies.   
Privacidad