Loading

1976 UNIVERSIDAD LABORAL

Texts

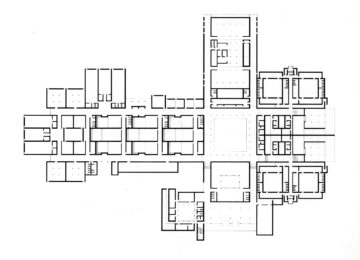
La situación, en una explanada junto al mar pero sin vistas sobre él, sugería, con el clima de Almería, una solución de «kashba» ordenada por un esquema racional. Para organizar un complejo programa docente se establece un sistema de calles que desembocan en una plaza central. Esta red de pasillos va engarzando aulas, laboratorios y despachos con diversos patios, a través de los que se iluminan y ventilan, creando un organismo alveolado altamente eficaz y tipológicamente comprobado en ese clima (el barrio de la Chanca de Almería). En algunos espacios se acentuan los puntos de luz con lucernarios profundos que, apareciendo en cubierta, ofrecen una singular imagen.

Se pensó siempre que los patios, con el clima así controlado, se convertirían en feraces jardines de especies autóctonas. Las vindonias, buganvillias, jazmines y parras debían crecer allí, haciendo posible la continuidad interior-exterior en la vida del edificio.

Al exterior el organismo aparece como cerrado, defendiéndose de los agentes externos. La construcción es de enorme sencillez, con una trama ortogonal de 4 x 4 m, sobre un esquema claramente racional que permite un crecimiento ilimitado.

Technical data

Arquitecto: Alberto Campo Baeza in collaboration with Julio Cano Lasso, M. Martín Escanciano, A. Más Guindal.. Situación: Almería, España. Proyecto: 1975. Construcción: 1976. Fotógrafo: Carlos Pérez Siquier.

Planos

Imágenes

Utilizamos cookies para asegurar que damos la mejor experiencia al usuario en nuestro sitio web. Más Información ⎮ Configurar Cookies.   
Privacidad