Loading

2011 Viviendas en Córdoba

El huevo de Colón

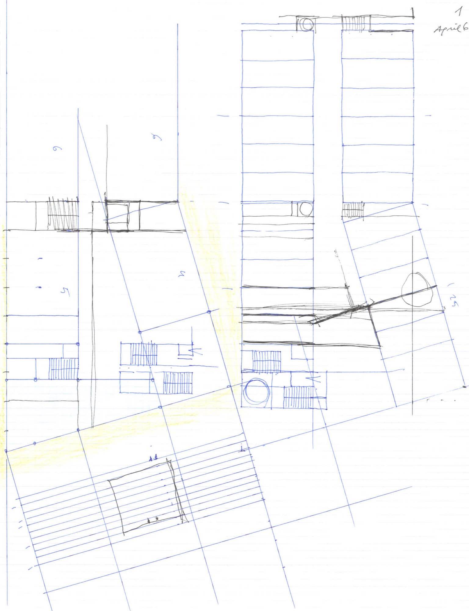
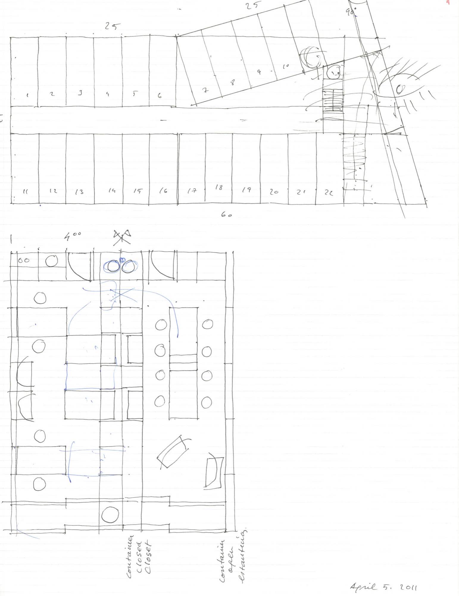
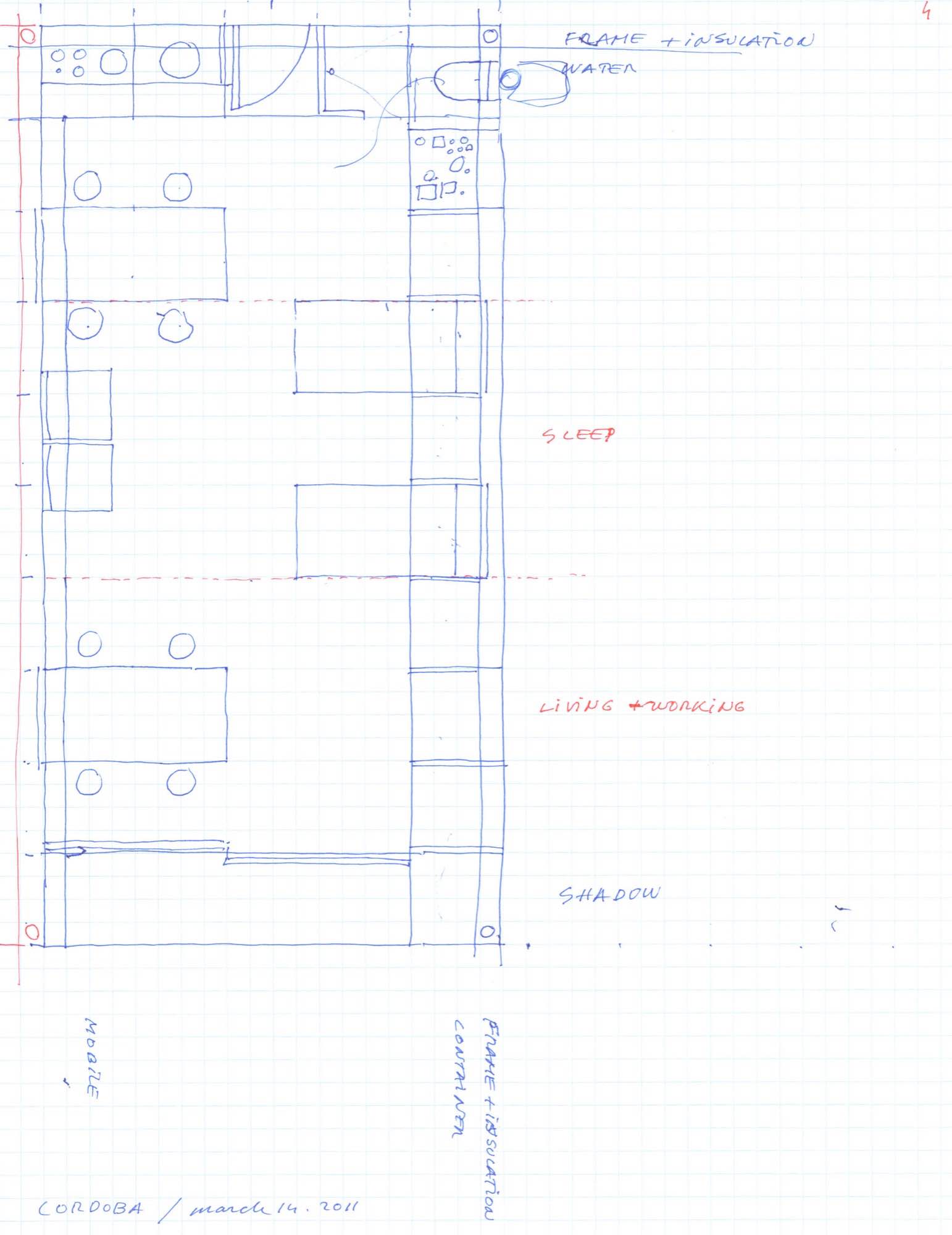
Viviendas inteligentes, flexibles, sostenibles y accesibles. Proponemos unos espacios únicos, habitáculos luminosos de 4×10 metros. Paralelepipédicos, cajas rectangulares. En el lado corto hacia el pasillo una banda de instalaciones de un metro de fondo. Ducha, lavabo, cocina, inodoro y puerta. En el lado corto hacia la fachada una banda de sombra como terraza. En los lados largos contenedores de armarios y estanterías.


Go to project in Architecture
Utilizamos cookies para asegurar que damos la mejor experiencia al usuario en nuestro sitio web. Más Información ⎮ Configurar Cookies.   
Privacidad