Loading

2002 OFFICES FOR PUBLIC HEALTH DELEGATION

Download development project

Texts

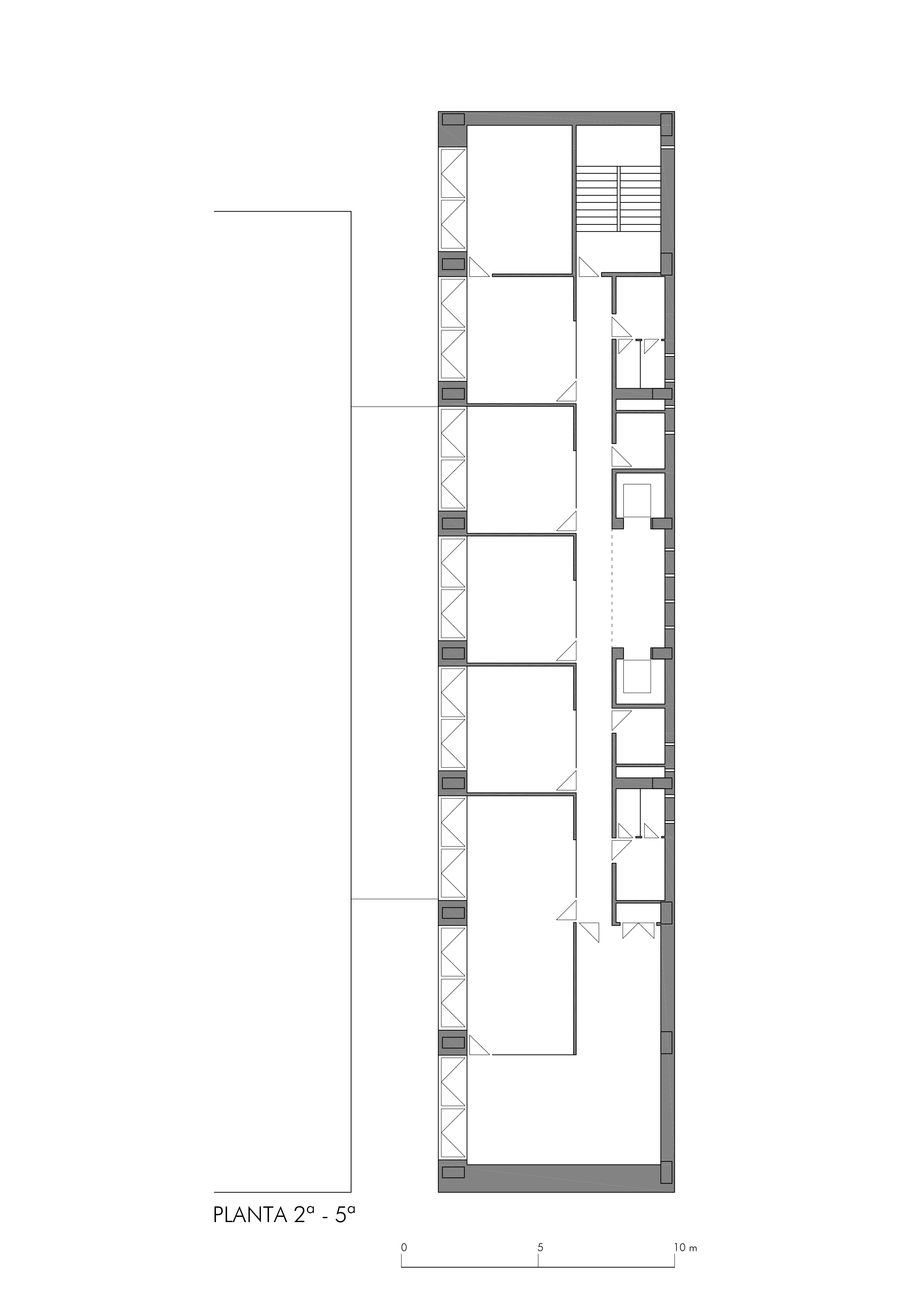
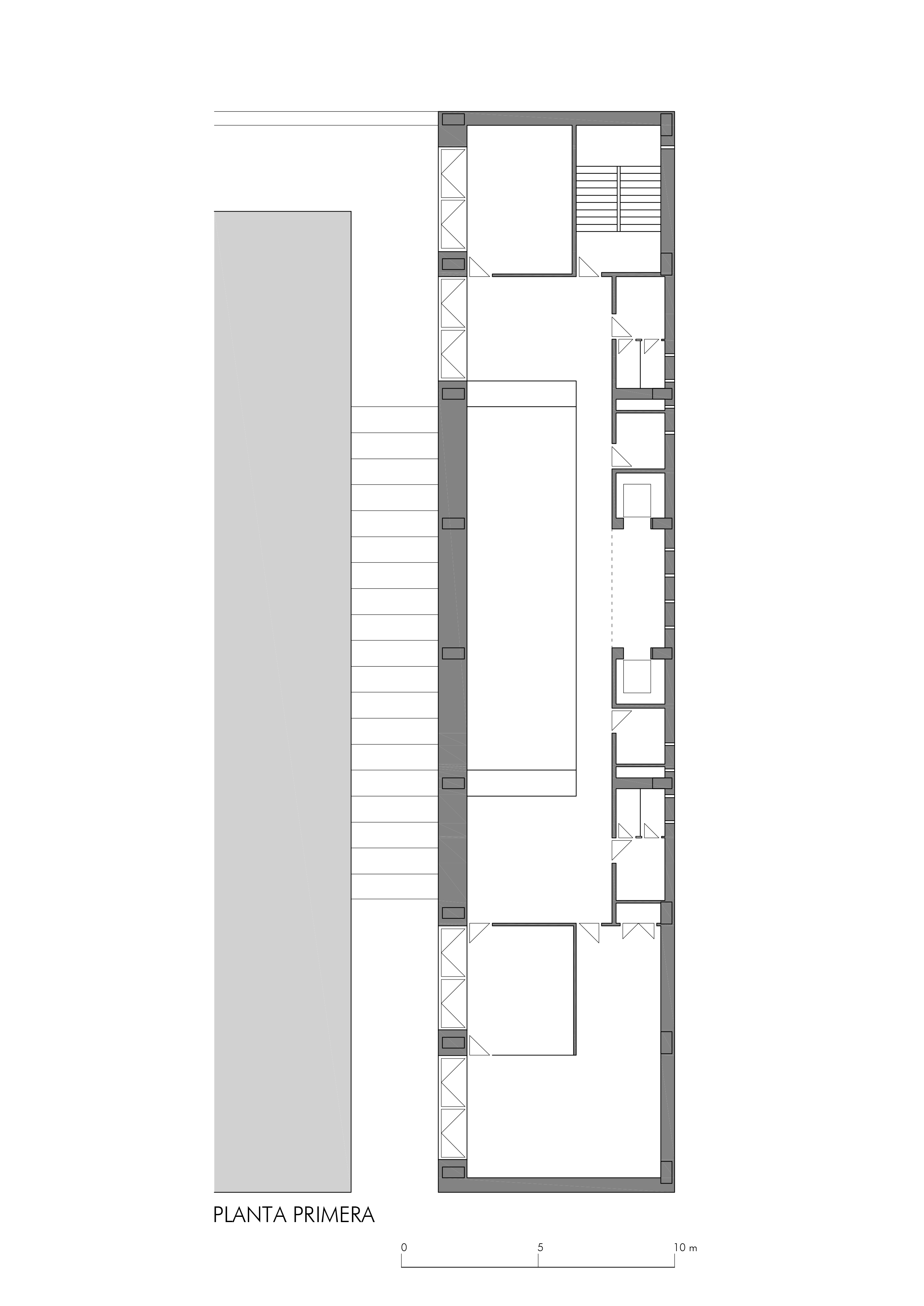
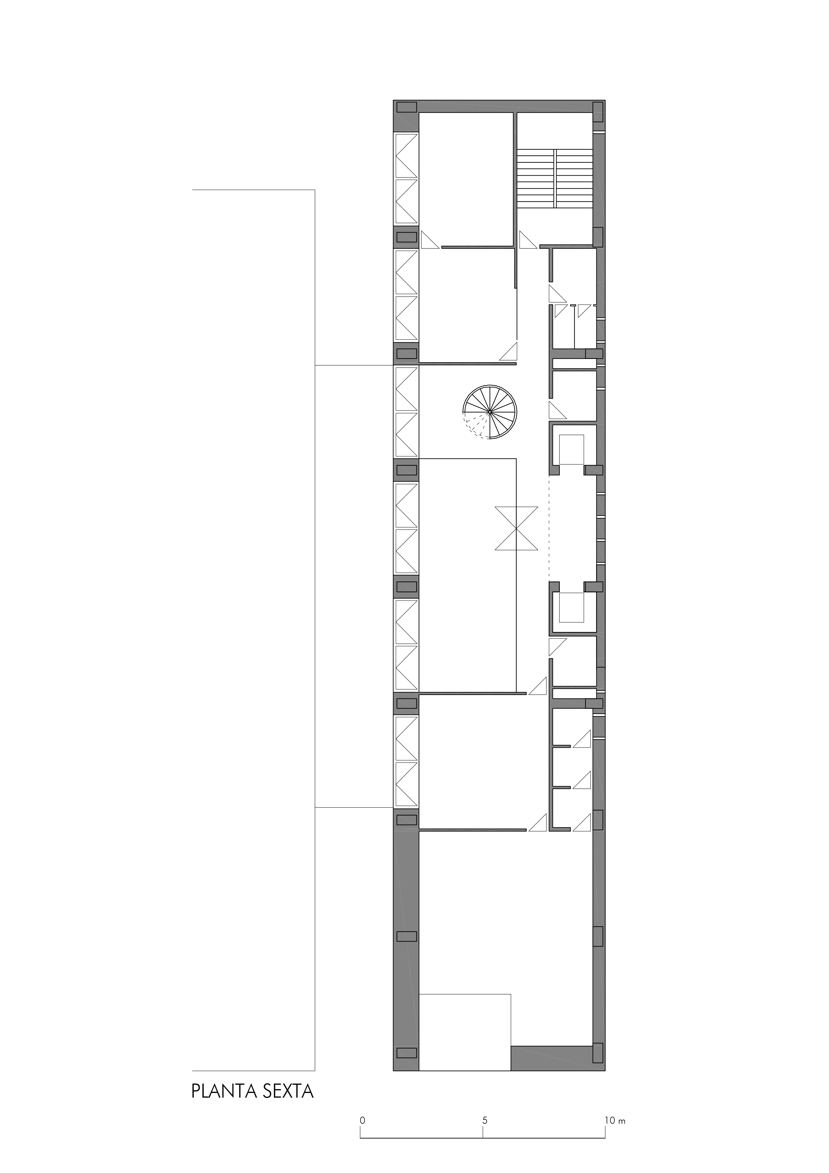
On an elongated site measuring 40 x 8.5 m with a maximum height of 7 floors, the offices were built as a single volume. A straight rectangular parallelepiped was built entirely in stone. The thick walls contain closets and storage. The windows are double. Inside, glazed. Outside, the project’s most unique aspect, are shutters made of stone to regulate the light that enters the rooms. When all of the shutters are closed, the parallelepiped appears as a solid stone box.

The project reaches the extreme of making the roof terrace in stone as well, creating an interesting belvedere over the city and the sea. In this way, the idea of a stone box is materialized.

Technical data

Architect: Alberto Campo Baeza in collaboration with Modesto Sánchez Morales, Jose María García, Francisco Salvador Granados. Location: Almería, Spain. Client: Andalusia Regional Government. Competition: 1999. Project: 2000. Built: 2002. Area: 5.450sqm. Collaborators: Gonzalo Torcal Fdez-Corugedo. Contractor: San José. Photographer: Roland Halbe, Hisao Suzuki.

Plans

Models

Images

Utilizamos cookies para asegurar que damos la mejor experiencia al usuario en nuestro sitio web. Más Información ⎮ Configurar Cookies.   
Privacidad