Loading

1982 DAYCARE CENTER IN ASPE

Download development project

Texts

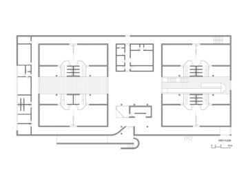
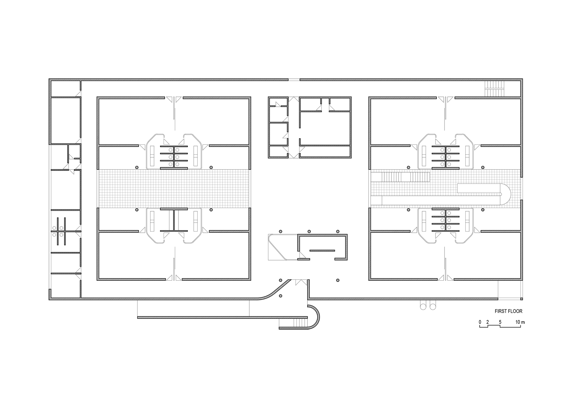
The degraded condition of the surroundings and the reduced dimensions of the site suggested an introverted building, which is translated as a white box with bright spaces in its interior. Compositionally the building is articulated in two courtyards onto which the classrooms open. One of these regularizes the site’s sectional, the lowest point of which is accessed by the ramp and stairs which tense this space.

The bathroom cores, located between every other classroom and specifically designed for children, are made more luminous by their enclosure with glassblock. The central space, with multiple entries and multiple uses (hall, dining room, indoor play area), receives horizontal light from the courtyards and vertical light from the skylights.

Technical data

Architect: Alberto Campo Baeza in collaboratoration with Javier Esteban Martín. Location: Aspe, Alicante, Spain. Project: 1981. Built: 1982. Photographer: EACB.

Plans

Models

Images

Utilizamos cookies para asegurar que damos la mejor experiencia al usuario en nuestro sitio web. Más Información ⎮ Configurar Cookies.   
Privacidad