Loading

1982 DAYCARE CENTER IN ONIL

Download development project

Texts

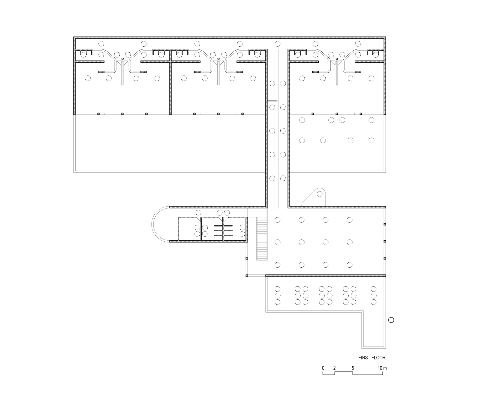
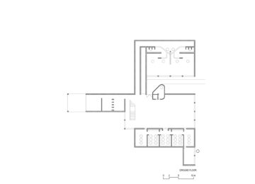
With a certain fragmentation, the plan responds to the adaption of the required program to a site with irregular topography.

The classroom area, in a lineal scheme, is situated at the highest point, each room having a terrace in continuation with it opening to the East, to the morning sun. A simple ramp connects this area with the lowest, where the multi-purpose room which serves as the entrance is located. This general space, of ample floor area and double height, opens large windows to the north, to an adjacent wood. In a similar manner in the opposite corner, where the stair giving access to the administrative area is located, large windows open to the direct southern light.

Technical data

Architect: Alberto Campo Baeza in collaboration with Javier Esteban Martín. Location: Onil, Alicante, Spain. Project: 1981. Built: 1982. Photographer: EACB.

Plans

Images

Utilizamos cookies para asegurar que damos la mejor experiencia al usuario en nuestro sitio web. Más Información ⎮ Configurar Cookies.   
Privacidad