Loading

1982 DAYCARE CENTER IN CREVILLENTE

Texts

The building, outwardly very closed, appears as a square-based white prism defending itself in its degraded surroundings.

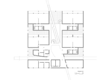
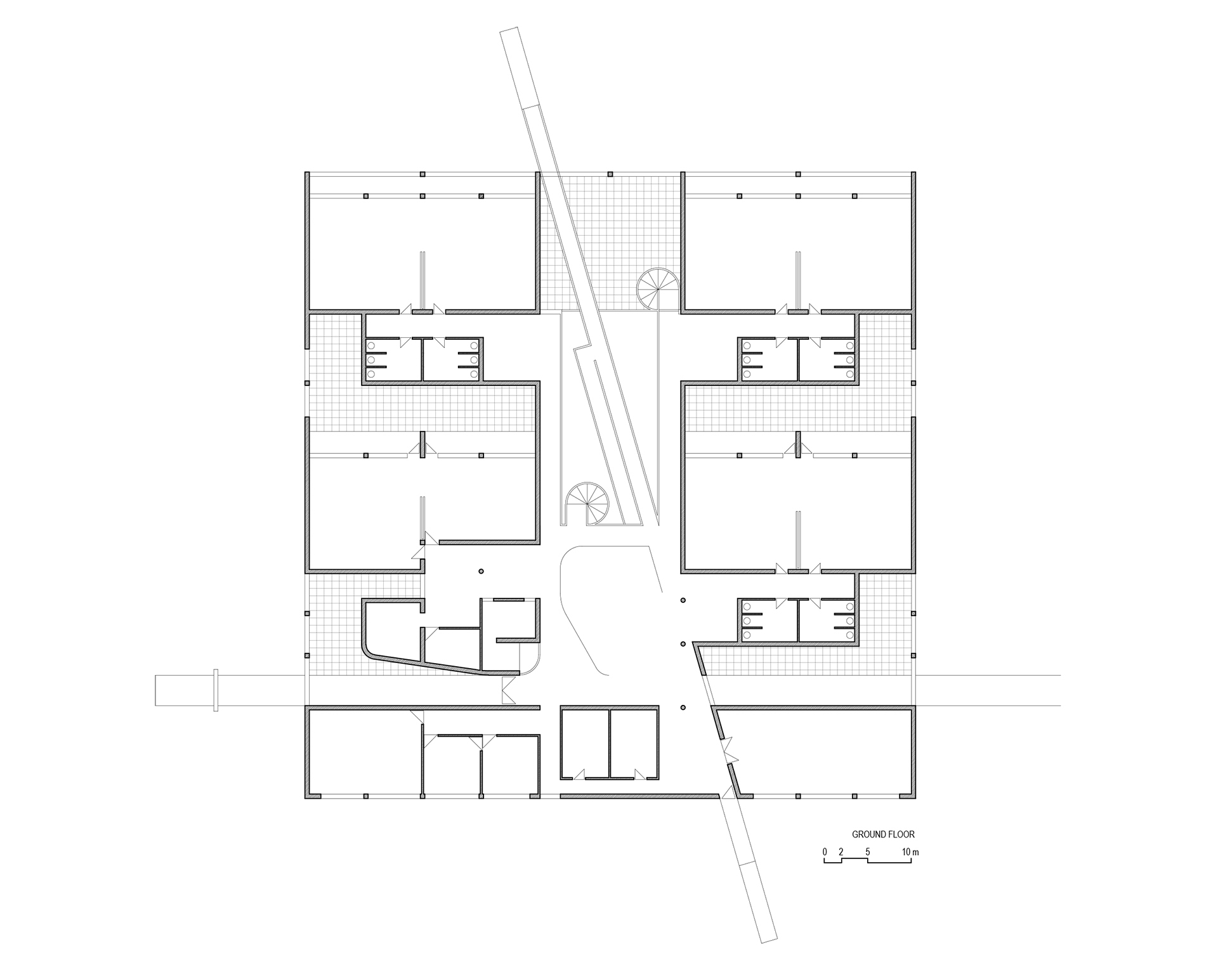
The site, with a steep slope, has a garden at its lowest point. The scheme is a succession of courtyards articulated on both sides of the main central space. This space is of double height in order to open to the garden. Access is made by a ramp which given its diagonal placement, becomes the protagonist of the space. A correspondence is thus made between the interior understanding of the building, with a great unified space, and the exterior, compact and tense, also expressive of this unity. Various strategically placed skylights tense the interior space, Light here, once more, being the central theme.

Technical data

Architect: Alberto Campo Baeza in collaboration with Javier Esteban Martín. Location: Crevillente, Alicante, Spain. Project: 1982.

Plans

Models

Utilizamos cookies para asegurar que damos la mejor experiencia al usuario en nuestro sitio web. Más Información ⎮ Configurar Cookies.   
Privacidad